Trilocale in vendita

Montemurlo, Via Sibilla Aleramo
€ 180.000
3 locali 3 locali
80 Mq 80 Mq
1 bagno 1 bagno

Trilocale in vendita

Montemurlo, Via Sibilla Aleramo

Descrizione annuncio

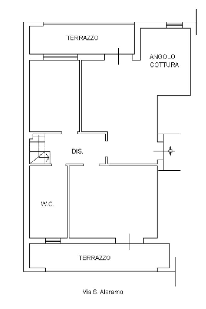
Al secondo piano di una palazzina servita da ascensore proponiamo in vendita un appartamento accogliente e ben distribuito. L’ingresso si apre sulla luminosa zona giorno, un unico ambiente open space che unisce salotto e cucina, arricchito da un balcone con affaccio sul giardino condominiale.

La zona notte comprende una camera matrimoniale con accesso a un secondo balcone con ripostiglio, una camera singola e un bagno finestrato. A completare la proprietà è presente un posto auto.

L’immobile è stato oggetto di interventi di riqualificazione nel 2024 grazie al Superbonus 110%, che hanno migliorato l’efficienza energetica.

Le foto sono state modificate con l’intelligenza artificiale al solo scopo di mostrare come sarà consegnato l’immobile.
Le modifiche riguardano esclusivamente l’imbiancatura delle pareti: l’appartamento non necessita di interventi di ristrutturazione importanti.

Mostra tutto

Nelle vicinanze

Trasporto pubblico Trasporto pubblico
Montale Agliana
Montale Agliana
1,8 Km
Maroncelli Sn
Maroncelli Sn
80 m
Scarpettini 397
Scarpettini 397
180 m
Ricariche auto elettriche Ricariche auto elettriche
COOP CENTRO Agliana | EnelX fast
2,8 Km
Scuole Scuole
Anna Frank
210 m
Scuole
230 m
Scuola Primaria Statale "Capoluogo"
2,6 Km
Scuola secondaria "Salvemini - La Pira"
2,7 Km
Farmacia Farmacia
Farmacia La Stazione
1,7 Km
Farmacia
1,9 Km
Farmacia Comunale 2 Fornacelle
2,6 Km
Farmacia di Galciana - Punto Salute
2,6 Km
Supermercati Supermercati
Penny
1,3 Km
COOP
1,7 Km
Conad
1,8 Km
Penny Market
2,6 Km
Supermercati
2,7 Km
Bar Bar
Il Malandrino
1,4 Km
Bar
1,9 Km
Gallo Nero
2,1 Km
Ristoranti Ristoranti
Ristorante Pizzeria Becca Ceci
340 m
Mamma butta la Pasta
1,8 Km
A Mangia' Fora
1,8 Km
Fidolio
1,9 Km
Filodolio - La Tripperia
1,9 Km
Mostra tutto

Caratteristiche

Rif.:
61144261
Piano:
2 di 3 con ascensore (Piano medio)
Posti auto:
1
Balconi:
2
Camere da letto:
2
Arredamento:
Assente
Mostra tutto
Prezzo Prezzo
€ 180.000
Rata mutuo Rata mutuo
€ 850 / mese
Spese annue Spese annue
€ 800
Proponi il tuo prezzoProponi il tuo prezzo
Immobile valutato con T·Valuta

Classe Energetica

B
B
B
B
B
B
B
B
B
EP globale non rinnovabile:
121.00 kW h/m² anno
EP globale rinnovabile:
121.00 kW h/m² anno
EP invernale del fabbricato:
EP estiva del fabbricato:
Anno di costruzione:
1995
Riscaldamento:
Autonomo
Tipo impianto:
A radiatori
Tipo alimentazione:
Metano

Ti interessa visionare l'immobile?

Fissa un appuntamento  Fissa un appuntamento

Richiedi informazioni

Clicca su Leggi per aprire l'informativa
* Questi campi sono obbligatori

Calcola il tuo mutuo

Semplice e senza impegno
Anticipo

( % )
Mutuo

( % )

pochi semplici passi

inserisci i tuoi dati
Questionario completato
Grazie per aver richiesto un appuntamento senza impegno con un nostro Consulente del Credito e Assicurativo.

Hai inserito correttamente tutti i dati necessari e a breve riceverai una e-mail con un link da convalidare per inviare i tuoi dati.
Affiliato
Studio Montemurlo Sas
Via Giovanni Pascoli, 2 59013 Montemurlo (PO)

Il nostro staff


  • Caterina Colzi
    Coordinatrice

  • Martina Genserico
    Collaboratrice

  • Emanuele Santoro
    Affiliato

  • Giuseppe Santoro
    Affiliato
Via Giovanni Pascoli, 2 59013 Montemurlo (PO)
Zona: Montemurlo
Mostra su mappa
Affiliato
Studio Montemurlo Sas
Via Giovanni Pascoli, 2 59013 Montemurlo (PO)

2025 Tecnocasa Franchising S.p.A. - P. IVA 08365160152 - Via Monte Bianco 60/A 20089 Rozzano (MI). Ogni agenzia ha un proprio titolare ed è autonoma. Privacy policy | Policy utilizzo | Cookie policy