Casa indipendente in vendita

Montemurlo, Via Bagnolo - Bagnolo
€ 319.000
Prezzo aggiornato
4 locali 4 locali
120 Mq 120 Mq
2 bagni 2 bagni

Casa indipendente in vendita

Montemurlo, Via Bagnolo - Bagnolo

Descrizione annuncio

Bagnolo - Via Bagnolo

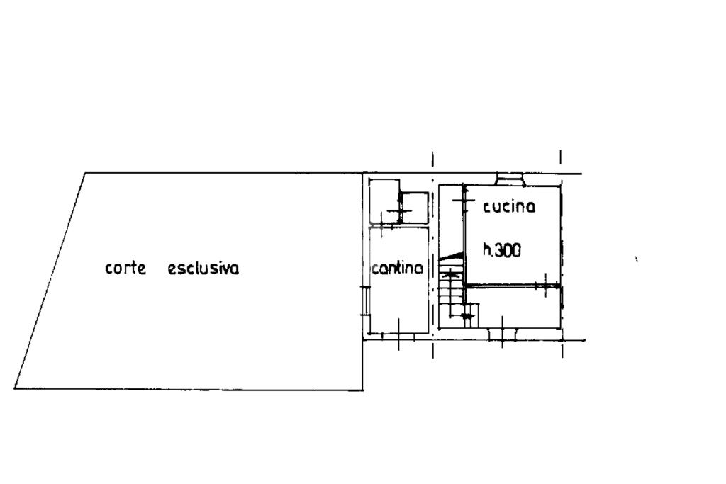
In una posizione tranquilla e riservata, proponiamo un terratetto libero su tre lati che unisce praticità e comfort in un ambiente accogliente e ben distribuito.
Al piano terra si sviluppa la luminosa zona giorno con soggiorno e cucina open space, uno spazio pensato per vivere al meglio la quotidianità. Sotto la scala trova posto un comodo ripostiglio adibito a lavanderia, mentre una stanza di passaggio conduce al primo bagno, completo di doccia.

Salendo al primo piano si accede alla zona notte, caratterizzata da due camere matrimoniali e da uno studio, ideale come ambiente di lavoro o stanza jolly secondo le proprie esigenze. Su questo livello è presente anche il secondo bagno, anch’esso dotato di doccia.

L’immobile è stato oggetto di un intervento di ristrutturazione nel 2012, durante il quale sono stati rifatti sia gli impianti che i pavimenti, garantendo così maggior comfort e funzionalità.

A completare la proprietà troviamo un posto auto privato e il giardino, attualmente non collegato direttamente all’abitazione, ma facilmente raggiungibile creando una porta finestra, così da ottenere uno spazio esterno fruibile in continuità con la zona giorno. Nel giardino è presente anche un pozzo collegato all’impianto idrico della casa, utilissimo sia per il consumo domestico che per l’irrigazione.

Ulteriore valore aggiunto è la grande soffitta, estesa per tutto il perimetro dell’immobile, uno spazio ampio e versatile perfetto per ripostiglio o potenziale utilizzo futuro.

Mostra tutto

Nelle vicinanze

Trasporto pubblico Trasporto pubblico
Montalese 158
Montalese 158
180 m
Labriola 74
Labriola 74
190 m
Ricariche auto elettriche Ricariche auto elettriche
Distributore Conad
2,4 Km
Scuole Scuole
Scuole
340 m
Scuola Primaria Statale "Capoluogo"
2,1 Km
Scuola Media di Maliseti
2,2 Km
Scuola secondaria "Salvemini - La Pira"
2,7 Km
Anna Frank
2,8 Km
Farmacia Farmacia
Lloyds Farmacia - Comunale N.13
2,0 Km
Parafarmacia Conad
2,2 Km
Farmacia Comunale 2 Fornacelle
2,6 Km
Farmacia di Narnali
2,7 Km
Ospedali Ospedali
Pronto Soccorso Ospedale "Santo Stefano"
2,9 Km
Supermercati Supermercati
Penny Market
770 m
Treff 3000
780 m
COOP
2,2 Km
Conad
2,3 Km
Penny
2,3 Km
Negozi Negozi
Negozi
2,1 Km
Bar Bar
Bar
1,7 Km
Bar Perugia
2,0 Km
Controsenso
2,4 Km
Exenzia
2,5 Km
Pasticceria Filippo e Giancarlo
2,6 Km
Ristoranti Ristoranti
Ristorante la Taverna della rocca
1,6 Km
Novum
2,1 Km
Mamma butta la Pasta
2,2 Km
Trattoria
2,3 Km
Ristorante Pizzeria Becca Ceci
2,3 Km
Mostra tutto

Caratteristiche

Rif.:
61142962
Piano:
Su più livelli di 2
Totale piani:
2
Camere da letto:
2
Arredamento:
Assente
Condizionamento:
Autonomo
Mostra tutto
Prezzo Prezzo
€ 319.000
Rata mutuo Rata mutuo
€ 1.504 / mese
Spese annue Spese annue
€ 0
Proponi il tuo prezzoProponi il tuo prezzo

Classe Energetica

F
F
F
F
F
F
F
F
F
EP globale non rinnovabile:
365.50 kW h/m² anno
EP globale rinnovabile:
365.50 kW h/m² anno
EP invernale del fabbricato:
EP estiva del fabbricato:
Anno di costruzione:
1967
Riscaldamento:
Autonomo
Tipo impianto:
A radiatori
Tipo alimentazione:
Metano

Prezzo ridotto di €1 (6%%)

Ti interessa visionare l'immobile?

Fissa un appuntamento  Fissa un appuntamento

Richiedi informazioni

Clicca su Leggi per aprire l'informativa
* Questi campi sono obbligatori

Calcola il tuo mutuo

Semplice e senza impegno
Anticipo

( % )
Mutuo

( % )

pochi semplici passi

inserisci i tuoi dati
Questionario completato
Grazie per aver richiesto un appuntamento senza impegno con un nostro Consulente del Credito e Assicurativo.

Hai inserito correttamente tutti i dati necessari e a breve riceverai una e-mail con un link da convalidare per inviare i tuoi dati.
Affiliato
Studio Montemurlo Sas
Via Giovanni Pascoli, 2 59013 Montemurlo (PO)

Il nostro staff


  • Martina Genserico
    Collaboratrice

  • Emanuele Santoro
    Affiliato

  • Giuseppe Santoro
    Affiliato
Via Giovanni Pascoli, 2 59013 Montemurlo (PO)
Zona: Montemurlo
Mostra su mappa
Affiliato
Studio Montemurlo Sas
Via Giovanni Pascoli, 2 59013 Montemurlo (PO)

2026 Tecnocasa Franchising S.p.A. - P. IVA 08365160152 - Via Monte Bianco 60/A 20089 Rozzano (MI). Ogni agenzia ha un proprio titolare ed è autonoma. Privacy policy | Policy utilizzo | Cookie policy